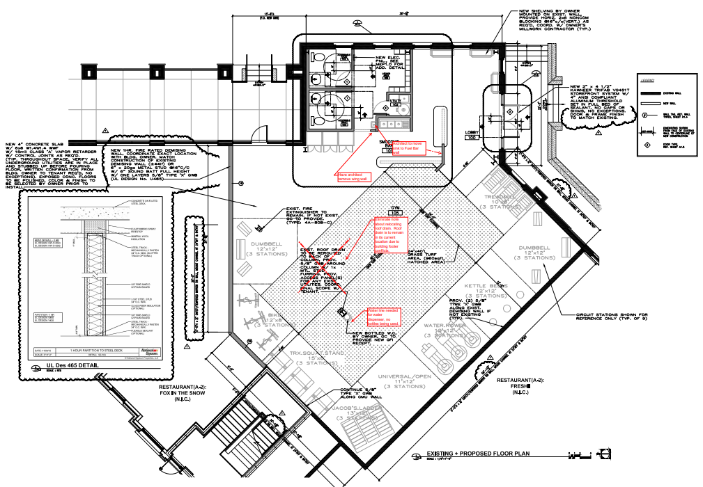
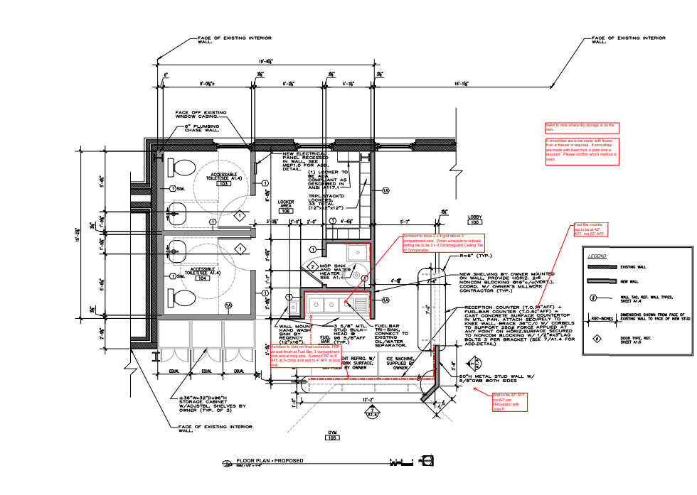
Commerial Fit out
3MF -3 minute fitness
Total Area: 3318 square foot
Tenant requested a fit out of a steel bay/ masonry stripe center for the 3-Minute Fitness Gym that would open within the space. This fit out includes 2 ADA compliant restrooms, locker area, merchandise area, fuel bar and patio, and center turf.
