residential addtion
red mill
RA - 144 sq ft
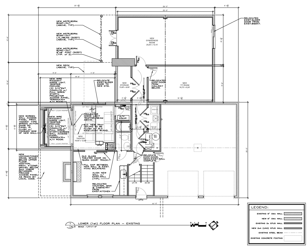
Original Home description:
This 2140 sq ft split entry 2 story single family residence has 3 bed and 2.5 baths. It was built in 1970 and sits on a 0.32 acre lot in a suburban plan.
Project Goal:
Main Floor addition
Master suite
In law suite
Redesign kitchen/dining area
Basement addition
Sound proof workout area
Family recreation area
